28 Ottobre 2022 |     
 
HOME
   
STUDIO
   
PROGETTI
   
CONTATTI
 

edificio a schiera in lottizzazione limena.pd

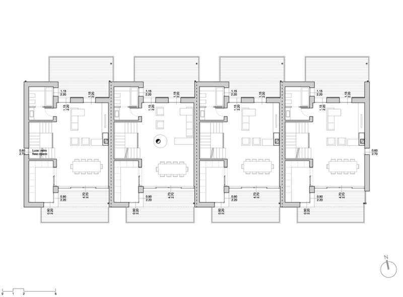
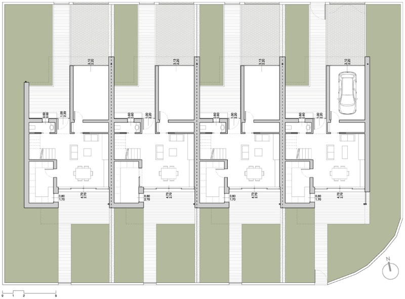
L’intero lotto è suddiviso in tre corpi di fabbrica distinti e separati tra loro da percorsi ciclopedonali che portano all’area verde interna alla lottizzazione. I tre corpi di fabbrica, a schiera, sono formati da alloggi di 4, 5 e 4 unità, con ingressi indipendenti dalla strada di lottizzazione. Tutte le unità dispongono di un’ulteriore ingresso ciclopedonale dall’area verde.

Lo schema abitativo prevede tre piani fuori terra con doppia zona giorno ai piani terra e primo e zona notte al piano secondo. Tutti gli appartamenti godono di doppio affaccio contrapposto, ricavandone benefici in termini di aerazione ed illuminazione naturale. La facciata rivolta a sud, dotata di grandi superfici vetrate che guardano l’area a verde, è scandita da una regolare articolazione di vuoti, terrazzati, e di pieni, in mattone faccia a vista, che richiamano una serie di piccoli bastioni. La funzione frangisole delle terrazze aggettanti consente di riparare le vetrate dal sole estivo e di esporle al basso sole invernale.

La facciata rivolta verso strada, sul fronte nord, si presenta più chiusa e frammentata, distinguendosi per un aspetto tipicamente urbano e per l’utilizzo di materiali diversi, come il legno delle pareti in nicchia o lo zinco titanio che incornicia il grande foro a doppia finestratura che caratterizza l’ultimo piano.



il fronte nord vestro strada

il fronte sud verso il verde





piano terra

piano primo


piano terzo

sezioni