28 Ottobre 2022 |     
 
HOME
   
STUDIO
   
PROGETTI
   
CONTATTI
 

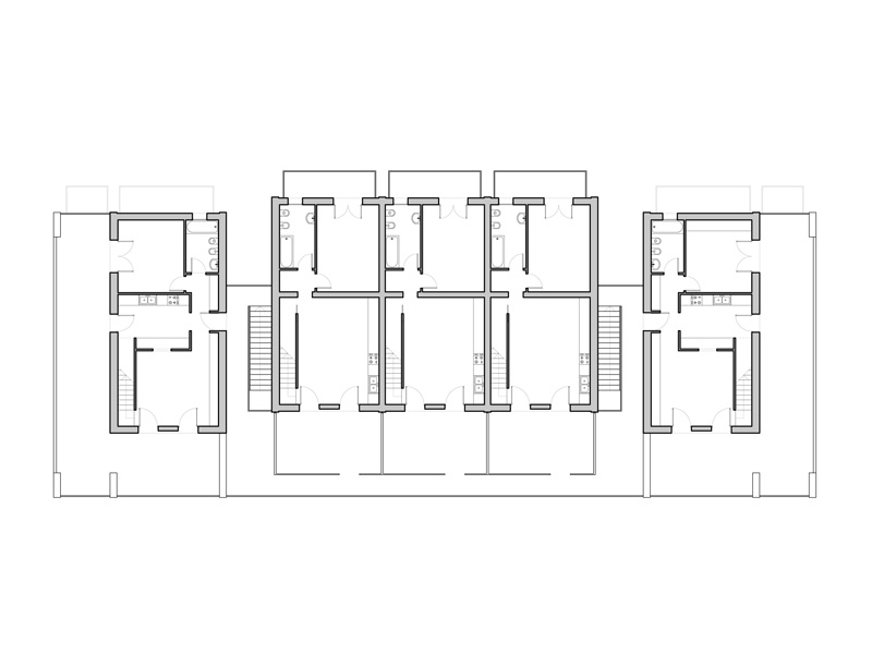
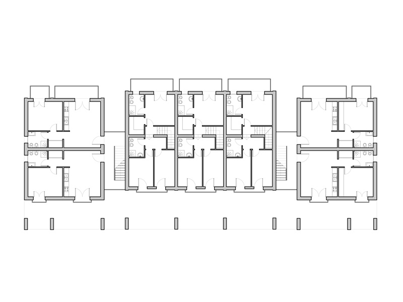
dodici alloggi a Padova

Il lotto edificabile è caratterizzato da una forma allungata con ingresso dal lato corto a sud.
Il progetto prevede la costituzione di tre distinti corpi di fabbrica, collegati da portici e dai due vani scala per l'accesso agli alloggi del secondo piano.
Al piano terra e primo trovano collocazione gli alloggi duplex e le autorimesse.

I prospetti sono caratterizzati dalla presenza del mattone a vista sui lati corti e di lesene dello stesso materiale a marcare i setti strutturali, nei lati lunghi.

Sul lato principale, una ringhiera in lamiera metallica marca il limite superiore del portico a doppia altezza e contorna i terrazzini aggettanti sul fronte posteriore


piano terra

piano primo


piano secondo

sottotetto