28 Ottobre 2022 |     
 
HOME
   
STUDIO
   
PROGETTI
   
CONTATTI
 

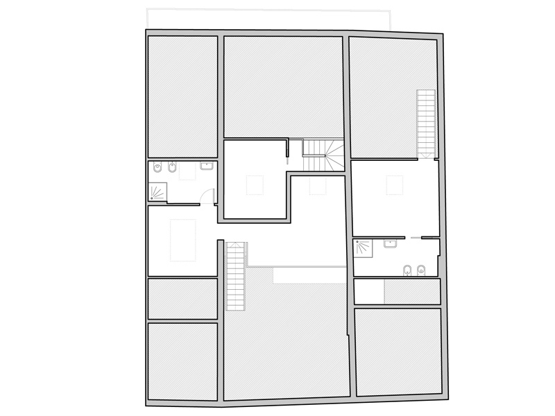
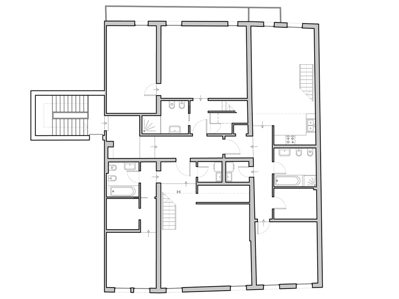
restauro sottotetto edificio del '700 - padova centro storico

L’edificio sorge all’interno delle Mura Medioevali di Padova. La parte di edificio interessata dal restauro riguarda esclusivamente il piano secondo-sottotetto che comprende sei fori di finestra laterali all’ultimo piano affacciato sulla pubblica via col mantenimento del prospetto originario. Vengono create tre nuove unità abitative ripristinando lo schema planimetrico originale caratterizzato dalla tripartizione dello spazio scandito dalle murature portanti.


Il restauro è finalizzato a mantenere e consolidare gli elementi strutturali, consentendo l’utilizzo dei soppalchi mediante l’inserimento di scale interne realizzate con materiali autoportanti (legno e ferro) e inserite nel contesto in modo da garantire in futuro la loro agevole rimozione. Dal punto di vista statico sono stati restaurati e rinforzati i solai di calpestio mediante la tecnica del sistema collaborante legno-legno. La copertura è stata mantenuta a vista con le travi originali restaurate e mantenendo le tavelle in cotto originali a vista.


Sono stati ricostruiti i soppalchi mediante l’inserimento di travature portanti in acciaio tipo HE a vista e travetti di legno posti nel loro spessore. L’opera di consolidamento non ha previsto aggiunte estranee alla struttura originale, quali pilastri o travature ad incastro, ma sono state utilizzate mensole di appoggio in acciaio imbullonate alla muratura, per permettere in qualsiasi momento la rimozione degli elementi aggiunti, rendendo perciò completamente reversibile l’intervento. Dal punto di vista strutturale il posizionamento delle travi in acciaio garantisce un adeguata azione di irrigidimento statico delle murature portanti

Le murature portanti che apparivano discoese e con notevoli fuori piombo sono state ripristinate mediante la tecnica del cuci-scuci.



pianta

soppalchi


sezione

particolare

foto del cantiere