28 Ottobre 2022 |     
 
HOME
   
STUDIO
   
PROGETTI
   
CONTATTI
 

bifamiliare in area agricola

Godendo di un’ottima esposizione nord-sud è stato concepito con le caratteristiche distributive tipiche degli edifici rurali: porticato a doppia altezza al fronte sud nel quale si affacciano con ampie aperture i locali abitabili al piano terra e le camere al primo piano; al lato nord trovano collocazione i servizi, i vani scala e i garage con ridotte superfici finestrate. Tali caratteristiche consentono di ottimizzarne l’efficienza energetica potendo godere dell’irraggiamento naturale a sud nei mesi invernali, mentre il portico ombreggerà i locali interni durante i mesi estivi.

Le sistemazioni esterne a verde vengono previste con alberi d’alto fusto a foglie caduche a sud alternati con piante di carpino tagliati a siepe, mentre al lato nord vengono previste siepi di carpino per schermare le proprietà private dalla strada.


La zona è caratterizzata dalla presenza di pochi edifici con destinazione prevalente abitativa in un’area prettamente rurale, caratterizzato da un disegno urbanistico casuale.

La relazione planimetrica con un edificio limitrofo ne ha definito gli allineamenti e gli ingombri. Dal punto di vista composito, nella sua semplicità formale tipico delle costruzioni rurali, si presenta con volumi compatti nei quali all’edifico centrale, ove trovano collocazione i locali abitabili, vengono accostate due superfetazioni: al loto nord lo spazio ad una altezza per i garage, quasi una “baracca” aggiunta sul retro della casa; al lato sud il porticato a doppia altezza, con copertura in legno e pilastri a setti intonacati, raccordati ai lati corti dell’edificio con tamponature in doghe di legno che fungono da divisorio tra le due unità e contribuiscono al riparo dai venti e dal sole ai lati esterni.



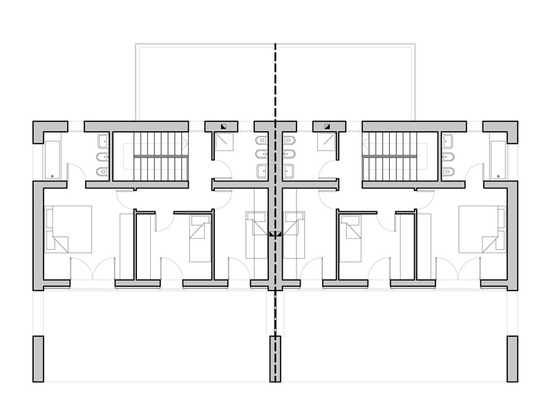
piano terra

primo piano


prospetto sud

portico


fianco

sud


vista

vista