28 Ottobre 2022 |     
 
HOME
   
STUDIO
   
PROGETTI
   
CONTATTI
 

piano di lottizzazione parola data - quartiere dell'olmo - limena.PD

La particolarità data dalla composizione del gruppo di proprietari e dalle modalità attraverso le quali il gruppo committente si è mosso sino al momento della stesura del progetto, fanno del progetto di lottizzazione denominato Parola Data un caso esemplare all’interno della disciplina urbanistica e del mercato delle abitazioni locale.

Il 28 dicembre 2000 il gruppo di proprietari invia congiuntamente una lettera all’Amministrazione Comunale nella quale chiede di rendere edificabile un terreno con un alto indice di frammentazione, poco adatto all’uso agricolo, situato tra la zona residenziale e la zona industriale. La trasformazione andrebbe a completare il disegno della parte del territorio comunale compreso tra il canale Brentella e il limite della zona industriale.

Sin dalle prime fasi di lavoro della Variante al PRG, il gruppo di proprietari si da un nome, Parola Data, che vuole essere esplicativo della modalità di relazione tra i proprietari stessi e indicativo delle fondamenta etiche e sociali sulle quali vengono intrapresi gli accordi e dichiara, attraverso la sottoscrizione congiunta di un documento, alcune intenzioni:
- di adesione volontaria al processo di adozione della Variante,
- di voler agire in maniera unitaria all’interno del gruppo di proprietari,
- di congelare ogni singola proprietà fino al momento dell’approvazione, onde evitare speculazioni varie.

Lo Studio di Architettura Forese Associati ha affiancato i 14 nuclei proprietari nella fase di predisposizione del piano, culminata con l’atto d’obbligo presentato il 23 ottobre 2002 all’Amministrazione Comunale, nel quale i proprietari medesimi si impegnavano ad edificare secondo determinate condizioni, in ambito perequativo, all’interno di una strategia complessiva di piano relativa alle aree soggette a trasformazione urbanistica, che potremmo definire di “urbanistica partecipata”.

Il gruppo di proprietari si è dotato di una struttura organizzativa precisa, avendo sottoscritto una serie di documenti che regolano i rapporti tra i singoli soggetti, stabilendo garanzie reciproche, individuando organi rappresentativi e di coordinamento. La riuscita dell'iniziativa si è concretizzata con la completa realizzazione delle opere di urbanizzazione.


gli obiettivi e i contenuti del piano

Alla scala della città di Limena l’area di lottizzazione rappresenta una cerniera e uno snodo di collegamento tra il sistema della zona industriale, appoggiato all’area servizi su Via Magarotto, comprendente il Prà del Donatore, e la maglia sufficientemente regolare del quartiere “Salata”, al centro del quale si trovano le scuole primarie e secondarie.

Le schede sull’area progetto, contenute nell’appendice normativa “B” della Variante al PRG, delimitano un comparto costituito da una zona edificabile e da una fascia boscata connessa al parco fluviale lungo il Brentella. Il comparto misura complessivamente 63.300 mq; con indice di edificabilità territoriale mc/mq di 0,5 la cubatura complessiva risulta di 31.650 mc.

I temi progettuali specificati nella scheda riguardano:

- la ricomposizione dei margini delle zone edificate esistenti

- un adeguato innesto su Via Magarotto

- la realizzazione di una fascia boscata posta a cuscinetto tra le aree agricole e le zone edificate

- una adeguata sistemazione dell’asse viario posto a limite dell’edificato, vero fronte principale dell’area urbanizzata

- un adeguato sistema di percorsi ciclabili.

Le indicazioni generali fornite dai committenti hanno richiesto una progettazione dell’area attenta alle singole esigenze espresse da ciascun proprietario e contemporaneamente al disegno complessivo del territorio. Tali indicazioni possono essere così riassunte:

- alta qualità ambientale

- buona dotazione di spazi aperti ad uso collettivo

- quote di cubatura destinate alla realizzazione per sé o per i propri figli.

La convinzione che il disegno dello spazio aperto fosse fondamentale nel dare alla lottizzazione le qualità richieste dai committenti, la presenza della fascia boscata all’interno del perimetro di lottizzazione, in continuità con il parco fluviale del Brentella, hanno costituito le condizioni e i prerequisiti attorno ai quali si è mosso il progetto.


la viabilità

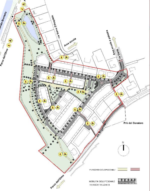
Il progetto della lottizzazione prevede, per la sede viabilistica, l’applicazione delle regole e dei criteri per la Moderazione del Traffico. La progettazione della viabilità avviene generalmente separando fisicamente le sedi dei vari tipi di utente (auto, bicicletta, pedone). Ciò comporta che, nel caso di condivisione della stessa sede da parte di più utenti, l’utente più aggressivo (auto) tenderà ad utilizzare tale sede in modo esclusivo, con grave pericolo per l’utente debole (pedone). Il concetto di integrazione, sul quale si basano i criteri adottati dagli interventi definiti di Moderazione del Traffico, prevede una maggiore commistione di utenti nell’uso della sede viaria nel suo complesso, puntando ad una consistente diminuzione della velocità dei flussi veicolari, onde garantire un maggior grado di sicurezza agli utenti deboli, contemporaneamente ad un miglioramento della scena urbana e alla possibilità di fruizione degli spazi collettivi. La strada locale ad anello chiuso che caratterizza la lottizzazione Parola Data consente un alto livello di vivibilità degli spazi urbani, con ridotti movimenti veicolari.


misure per il miglioramento della qualità ambientale - circolazione e flussi d'aria

Il progetto intende perseguire alcune misure che mirino alla salvaguardia dell’ambiente esterno e al risparmio delle risorse naturali presenti in loco, alla riduzione dei carichi ambientali e al miglioramento delle condizioni di benessere degli spazi abitativi esterni ed interni.

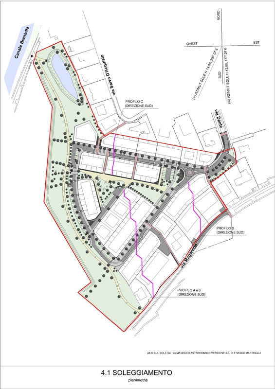
Considerato il valore aggiunto della fascia boscata, l’orientamento dei venti prevalenti e l’orientamento di edifici e fascia a verde, si garantisce una ottimale circolazione naturale esterna dell’aria che sfrutta le condizioni microclimatiche presenti.

Nelle NTA è contenuto l’obbligo per tutte le unità di un doppio affaccio contrapposto, con l’obiettivo di migliorare la circolazione dell’aria all’interno delle abitazioni.

 





misure per il miglioramento della qualità ambientale - piste e spazi per le biciclette

particolare attenzione è stata posta in fase progettuale alla mobilità ciclopedonale, garantendo un attraversamento dell’area di lottizzazione assolutamente protetto, numerosi percorsi di collegamento con i quartieri e le zone vicine e una capillare e sicura rete di percorsi all’interno dell’area.


misure per il miglioramento della qualità ambientale - spazi di uso comune

l’utilizzo di strategie di Moderazione del Traffico proposte dal progetto consente una nuova vivibilità e percezione della sede stradale. Rendendola più simile ad una piazzetta allungata che ad una strada carrabile moltiplica gli spazi di socialità.

La fascia a verde posta nel mezzo dell’area di lottizzazione garantisce spazi differenziati e protetti. Eventuali attrezzature saranno selezionate sulla base delle loro caratteristiche costruttive in termine di ecocompatibilità dei materiali impiegati, facilità di manutenzione, sicurezza.


riduzione dei carichi ambientali - permeabilità dei suoli

il progetto prevede la realizzazione di un bacino di accumulo delle prime acque piovane. Si valuterà economicamente la possibilità di riutilizzo delle stesse per l’irrigazione delle aree verdi e dei giardini privati.

Tutte le aree a parcheggio dovranno essere pavimentate con materiale drenante, nella proporzione minima corrispondente al 60% dell’intera superficie prevista dagli standard.

I percorsi interni al verde saranno realizzati in stabilizzato o in materiale similare.
Il totale previsto delle superfici permeabili è pari al 65% dell'intero ambito di intevento.


riduzione dei carichi ambientali - soleggiamento e corretta esposizione


la quasi totalità degli edifici è disposto secondo un orientamento che posiziona la facciata con gli ambienti abitabili diurni rivolti a sud. L’utilizzo di portici sul lato sud, proposto negli elaborati di progetto, consente di regolamentare, con facili verifiche, l’ottimizzazione dell’irraggiamento nelle varie stagioni.



la lottizzazione realizzata